首 页
广源铝业
走进广源
厂区风貌
广源大事记
组织架构
企业文化
广源荣誉
广源宣传片
产品中心
平开门
推拉窗/门
通用型材
平开窗
幕墙
家装产品(平开)
家装产品(推拉)
穿条平开窗平开门
穿条推拉窗和推拉门
注胶平开窗和门
注胶推拉窗和门
全铝家居
全铝家居
系统门窗
核心竞争
核心技术
生产设备
工艺流程
工艺标准
国际营销
售后服务
国内营销
工程实例
工程案例
合作伙伴
资讯中心
企业动态
行业资讯
展会信息
铝锭报价
信息公开
招聘信息
联系我们
在线地图
在线留言
语言选择
中文
english
简体中文
English
全国服务热线:400-633-6268
新品推荐
平开窗
平开门
推拉窗/门
幕墙
家装产品(平开)
家装产品(推拉)
穿条平开窗平开门
穿条推拉窗和推拉门
注胶平开窗和门
注胶推拉窗和门
通用型材
色板中心
您现在的位置:
首页
-
产品中心
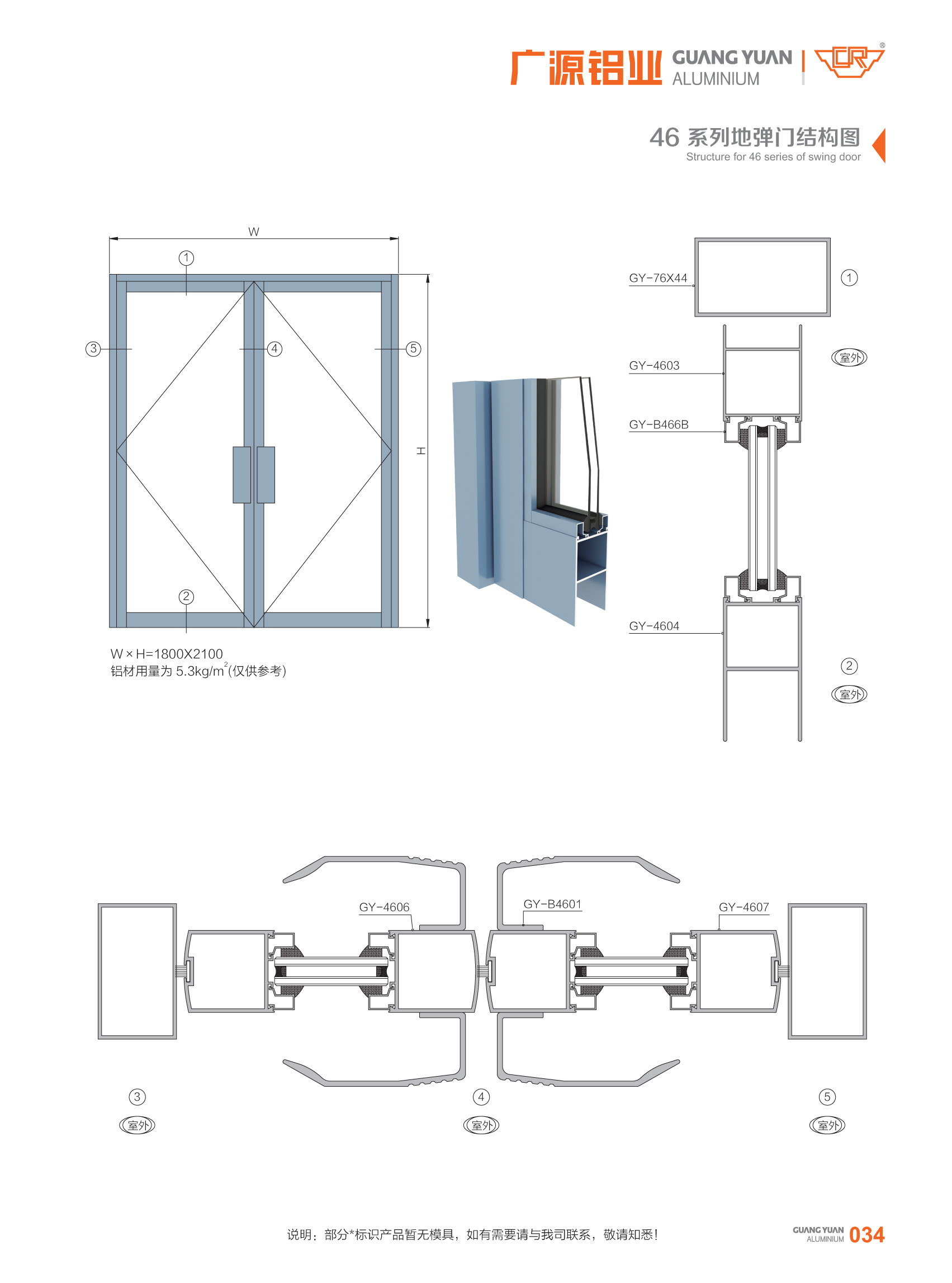
46系列地弹门
返回
穿条平开窗平开门
穿条推拉窗和推拉门
隔热节能系列
家装产品(平开)
家装产品(推拉)
家装型材
建筑型材
幕墙
幕墙系列
平开窗
平开门
平开门窗系列
通用型材
通用型材系列
推拉窗/门
推拉门窗系列
阳光房系列
注胶平开窗和门
注胶推拉窗和门
返回
034
035
首页
上一页
1
下一页
尾页
共2记录 第1页 / 共1页
加载更多