您现在的位置:首页 - 产品中心
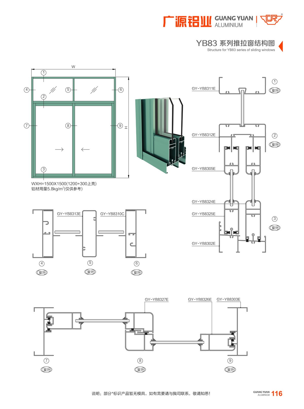
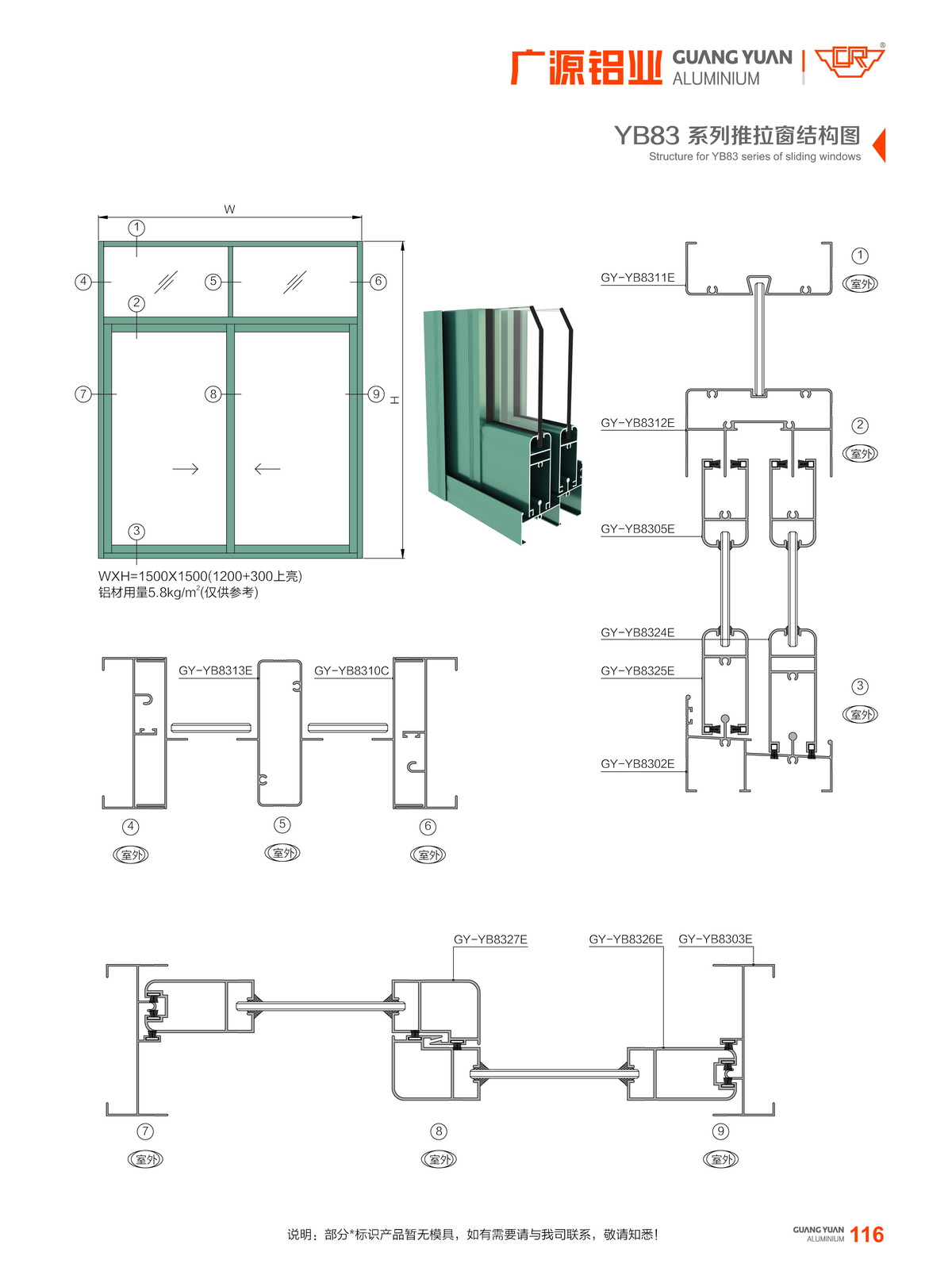
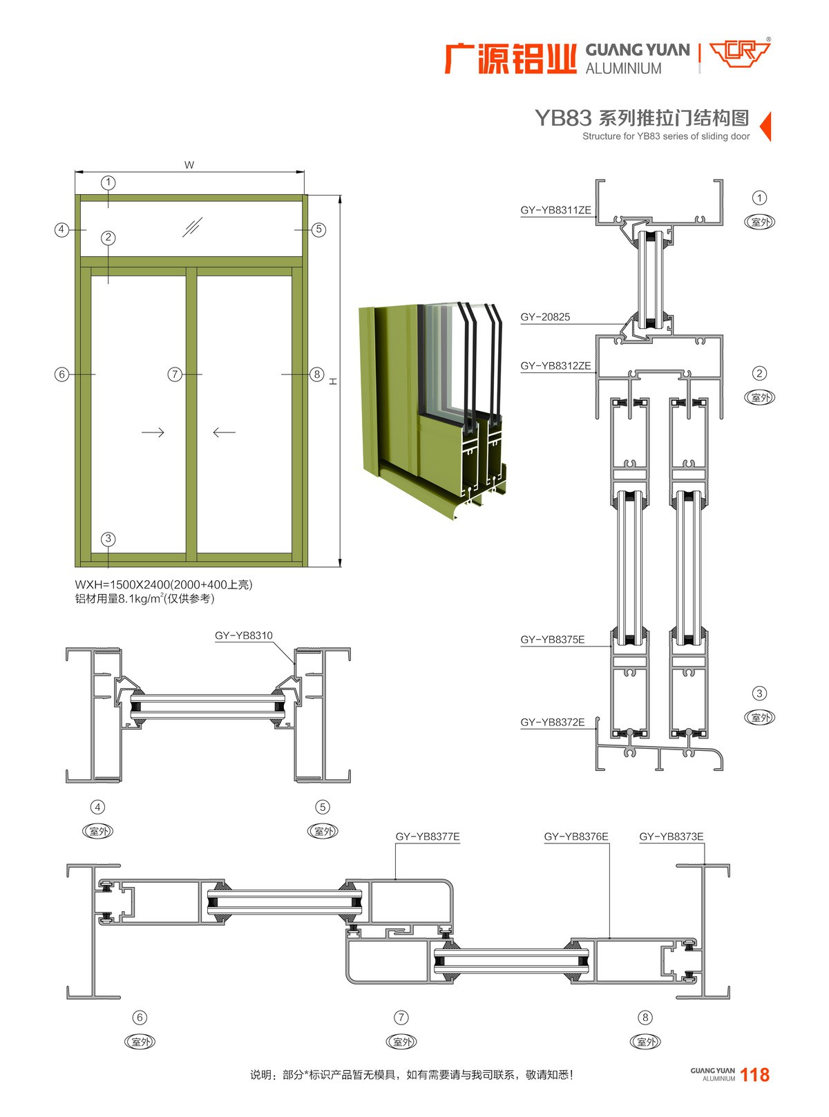
YB83系列推拉门窗
返回 返回
首页 上一页 1 2 下一页 尾页
共10记录 第1页 / 共2页
加载更多